사업분야

Business

다단충돌식 스크러버 (MSI Scrubber)

다단충돌식 스크라버는 입자상 물질(PM),산성가스,악취성가스를 고효율로 제거하기위해

 가스-액체 충돌에너지를 활용하는 기계식/하이브리드 세정기술 입니다.

 다단충돌식 스크러버 기술 설명

 

1. 개념 정의

    다단충돌식 스크러버는 가스 중의 먼지(Particulate)와 수용성/반응성 가스(예: HCl, SO₂, NH₃) 등을 제거하기 위해
    가스가 여러 단계의 충돌판(Multistage Impinge Plate) 또는 Baffle구조에 고속으로 부딪히며 세정수와 반복적으로 

    접촉하도록 설계된 장치입니다.

 

2. 작동 원리

① 오염가스 유입

  • 오염된 가스가 하부 또는 측면에서 스크러버 내부로 유입

  • 팬을 이용해 일정 유속 확보

② 1단 충돌(1st Impingement Stage)

  • 가스가 충돌판 위로 고속 통과

  • 물방울과 먼지가 강하게 부딪혀 큰 액적 형성

  • 큰 액적은 중력/관성으로 하부로 낙하

③ 분무(Atomization & Wetting)

  • 노즐에서 지속적으로 세정수 공급

  • 충돌판 상에 물막(Liquid film) 형성

  • 세정수는 방울화(droplet)되어 가스와 접촉 면적 증가

④ 2단, 3단… 반복 세정(Multi-stage Removal)

  • 가스는 상부 또는 측면 채널을 따라 다음 단으로 이동

  • 각 단에서:

    • 더 작은 입자 포집

    • 가스상 오염물 화학 반응/흡수

    • 세정효율 누적 증가

⑤ 미스트 제거(Demister Stage)

  • 최상단에서 데미스터(와이어메시, 브이바플)로 미세 액적 제거

  • 배출 가스의 수분 및 드리프트 최소화


3. 주요 제거 메커니즘

✔ 입자상 오염물 제거 메커니즘

  • 관성 충돌(Inertial Impaction) : 고속 통과 시 충돌판/물막에 큰 입자가 박힘

  • 난류 확산(Turbulent Diffusion) : 다단의 구조로 난류 증가 → 미세입자 충돌 확률 증가

  • 액적 포집 : 대형 액적에 작은 입자가 포집되어 낙하

1~3 μm 정도의 미세먼지까지 높은 효율 확보

 

✔ 가스상 오염물 제거 메커니즘

  • 흡수(Absorption) : 물에 용해되는 가스 세정

  • 중화(Neutralization) : 약품(Alkali 등) 사용 시 산성가스 제거

  • 화학반응(Reaction) : SO₂, HCl 등은 알칼리와 반응하여 염 생성 → 제거


4. 기술적 특징 및 장점

항목

특징

고효율 집진

다단화로 입자 1~2 μm까지 >95% 제거 가능

가스 제거 기능

산성가스·염기성 가스 제거에 탁월

구조 단순

기계적 구조로 유지보수 용이

폐수 재순환 가능

순환펌프 사용하여 처리수 절감

부하변동 대응

유량 변동에 비교적 안정적


5. 주요 적용산업

  • 금속표면처리(피클링)

  • 합성수지·화학공정

  • 도금·에칭공정

  • 화학플랜트 배기가스 처리

  • 열처리·소각 배가스 세정

  • 정유·석유화학 VOC 및 부식성 가스 처리


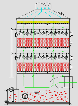
6. 장비 구성 예시

  1. 하부 가스 인렛

  2. 1단 임팩트 플레이트

  3. 2단 베플 충돌판

  4. 3단 고효율 충돌판

  5. 분무노즐 세정수

  6. 순환 탱크

  7. 데미스터

  8. 상부 배기덕트 및 배출팬(Fan)

♣ 다단충돌식 스크라버 기술의 장점

1. 집진 및 흡수 효율의 향상

        유해가스 및 분진을 세정수에 통과시키는 과정에서 기체와 액체 접촉능력은 기존의 기술에 비해  등히 향상된다.

        따라서, 집진 및 유해가스의 포집 흡수 효율은 최대로 증가된다.

 

2. 백연발생 저감

        노즐을 통과하면서 미세하게 분산된 공기방울이 이동하면서 주변의 물은 회전운동을 일으키게 된다.

        이 운동으로 유해가스가 물속으로 가지고 온 내부에너지(온도) 일에너지로 변환되어 소멸되고

        순환수의 온도는 늘 일정하게 유지되어 수증기 발생으로 인한 백연발생을 억제한다.

 

3. 유지보수비용 절감

        기존의 충진식과는 달리 집진기 내부에 충진되는 충진물이 전혀없고  오직 물과 충돌판에 의해

        포집하므로 충진물 보수 또는 폐기로 인한 2차 환경 폐기물 발생문제는 전혀 발생하지 않는다.

 

4. 분진 및 가스상물질 동시포집

        기존의 충진식 스크라버는 충진물이나 노즐의 막힘 발생으로 분진포집이 어려운 반면

        구조가 간단한 충돌판 방식으로 막힘발생이 전혀 없으므로 분진 및 가스상 물질을 동시에 포집할 수 있다.

 

5. 악취물질 포집

        스크라버 세정수에 탈취제를 투입하여 약품반응에 의한 악취물질 제거에도 효과가 탁월하다.

 
 

♣ 산업재산권(특허권) 현황

 특허제목 : 다단 충돌식 스크러버

 특허번호 : 10-2021-0075988

 

♣ 세부구성도 및 공정설명

♣ 기술의 차이점

♣ 기술방식 비교

기존기술

충진식(PBS)

향유흐름 방식

신기술

다단충돌식(MSI)

층순류,향류,침수,분산방식

위로 스크롤